Projekt Frankopanska
Višestambena zgrada u strogom centru Bjelovara na jedinstvenoj lokaciji
O projektu
Projekt višestambene zgrade u strogom centru Bjelovara na jedinstvenoj lokaciji, projekt Frankopanska! Zgrada se sastoji od 24 stana na 4 etaže veličine od 48 do 80 m2 te se nalazi u samom centru grada, u blizini škole i vrtića. Unatoč poziciji u centru grada, zgrada se nalazi u izdvojenom dijelu, ne nalazi se na glavnoj prometnici te je okružena zelenilom. Zgrada ima lift, svaki stan će ima lođu i svoje parkirno mjesto.
Specifikacije zgrade
- armirano betonska konstrukcija
- pregrade izvedene u suhoj gradnji, KNAUF
- vanjska stolarija: plastika
- fasada: vuna 15 cm
- grijanje putem dizalica topline
- ugrađena klima u svakoj stambenoj jedinici
- keramika: izbor kupca između više modela i dimenzija
- parket: hrastov, troslojni
- protuprovalna vrata u stanove (sigurnosna brava)
- ugrađeno dizalo (lift)
- energetski certifikat A+
Galerija
Stanovi

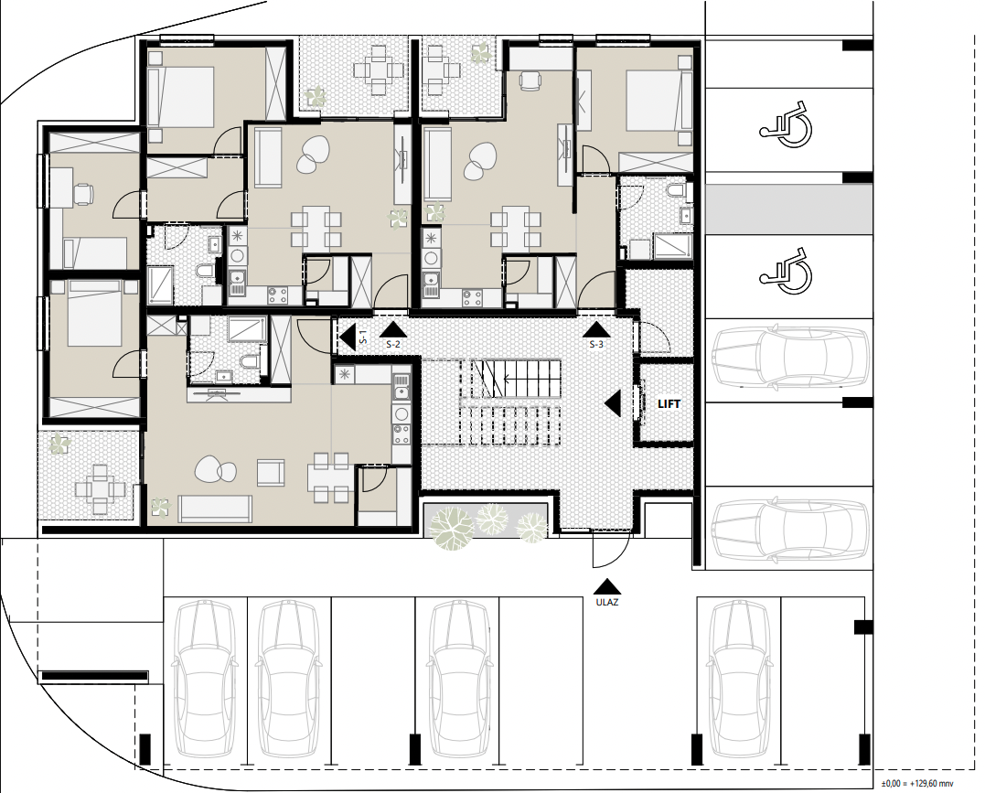
S-1 (prodano)
0
Kat
1.5
Broj soba
63.6
Površina
Saznaj više

S-2 (prodano)
0
Kat
2.5
Broj soba
68.8
Površina
Saznaj više

S-3 (prodano)
0
Kat
1.5
Broj soba
56.9
Površina
Saznaj više

S-4 (prodano)
1
Kat
2.5
Broj soba
70.5
Površina
Saznaj više

S-5 (prodano)
1
Kat
1.5
Broj soba
50.7
Površina
Saznaj više

S-6 (prodano)
1
Kat
2.5
Broj soba
67.9
Površina
Saznaj više

S-7 (prodano)
1
Kat
1.5
Broj soba
56.4
Površina
Saznaj više

S-8 (prodano)
1
Kat
2.5
Broj soba
78.5
Površina
Saznaj više

S-9 (prodano)
1
Kat
2.5
Broj soba
78.5
Površina
Saznaj više

S-10 (prodano)
1
Kat
1.5
Broj soba
55.9
Površina
Saznaj više

S-11 (prodano)
2
Kat
2.5
Broj soba
70.9
Površina
Saznaj više

S-12 (prodano)
2
Kat
1.5
Broj soba
50.8
Površina
Saznaj više

S-13 (prodano)
2
Kat
2.5
Broj soba
68.3
Površina
Saznaj više

S-14 (prodano)
2
Kat
1.5
Broj soba
56.5
Površina
Saznaj više

S-15 (prodano)
2
Kat
2.5
Broj soba
78.7
Površina
Saznaj više

S-16 (prodano)
2
Kat
2.5
Broj soba
78.7
Površina
Saznaj više

S-17 (prodano)
2
Kat
1.5
Broj soba
56
Površina
Saznaj više

S-18 (prodano)
3
Kat
2.5
Broj soba
70.9
Površina
Saznaj više

S-19 (prodano)
3
Kat
1.5
Broj soba
50.6
Površina
Saznaj više

S-20 (prodano)
3
Kat
2.5
Broj soba
68.3
Površina
Saznaj više

S-21 (prodano)
3
Kat
1.5
Broj soba
56.5
Površina
Saznaj više

S-22 (prodano)
3
Kat
2.5
Broj soba
78.7
Površina
Saznaj više

S-23 (prodano)
3
Kat
2.5
Broj soba
78.7
Površina
Saznaj više

S-24 (prodano)
3
Kat
1.5
Broj soba
56
Površina
Saznaj više



















